Umwandlungswirkungsgrad
Unsere branchenführende Modulleistung trägt zu einem Umwandlungswirkungsgrad von 23.3 % bei.
Produktdaten aktualisiert im April 2025
Leistungsabgabe des Moduls
Wirkungsgrad des Moduls
Toleranz der Ausgangsleistung
Unsere branchenführende Modulleistung trägt zu einem Umwandlungswirkungsgrad von 23.3 % bei.
Der Bifazialefaktor erreicht 80 %, eine 30 % höhere Stromerzeugung als bei herkömmlichen Modulen.
Zweiseitige, doppelt verglaste Module, symmetrische Bauweise, geringes Risiko von versteckten Rissen.
Höhere Leistungsabgabe als herkömmliche Module an trüben und bewölkten Tagen sowie bei anderen lichtschwachen Bedingungen.
3-fache IEC-Prüfung nach neuer Norm bestanden, 15 Jahre Materialgarantie und 30 Jahre Leistungsgarantie.
Ideal für zentralisierte Projekte
| Zellentyp | N-Typ |
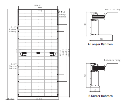
| Abmessungen des Moduls | 2465×1134×30mm |
| Glasdicke | 2.0 mm+2.0mm |
| Modulgewicht | 34.3 kg |
| Ausgangskabel | 4 mm², Kabellänge: +400mm/-200mm (individuell anpassbar) |
| Stecker |
PV-DA02M2-XY (oder speziell angefertigt)
|
| Anschlussdose | IP68, 3 Bypass-Dioden |
| Rahmen | Eloxierte Aluminiumlegierung |

| Max. Systemspannung | DC1500V |
| Leistungstoleranz | 0~+5W |
| Betriebstemperatur | -40℃~+85℃ |
| Max. Bemessungsstrom der Sicherung | 30A |
| Statische Last | Vorseite 5400Pa, Rückseite 2400Pa |
| Verpackungsangaben |
36 pcs/Pallet;144(20GP);576(40HQ)
|